- Agence immobilière à Roanne et Villeurbanne
- Vente
- Rhone
- Lyon
- T3 de 68.01 m2 - Lyon 3ème - Secteur Villette
Référence : 122554RG
Calculette
Partager
T3 de 68.01 m2 - Lyon 3ème - Secteur Villette
Description de l'offre
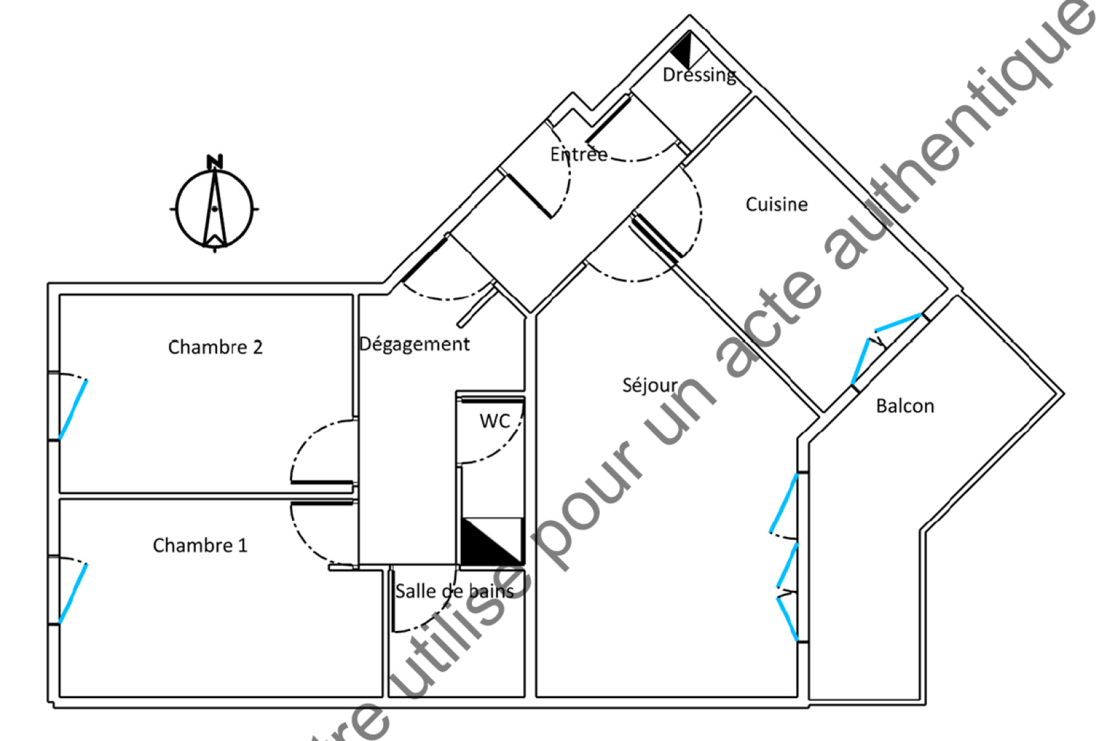
Votre agence GINET Immobilier vous propose à la vente ce bel appartement T3 de 68,01 m², situé au 5ème étage avec ascenseur d'une résidence récente et sécurisée, dans le secteur villette.
L'appartement se compose d'un séjour lumineux de 17.27 m2, ouvrant sur le balcon et sa vue dégagée sur la cour de l'immeuble. D'une cuisine indépendante disposant elle aussi d'un accès au balcon, de deux chambres, d'une salle de bains et d'un WC indépendant.
Très calme et baigné de lumière, ce bien offre de belles possibilités d'aménagement.
Son emplacement idéal, à proximité de la gare Part-Dieu, des commerces, écoles et transports, en fait une opportunité rare sur le secteur.
Un garage est proposé en sus à 15 000 euros.
Pour le visiter, contactez Antoine Madelrieux O698301684
Copropriété de 51 lots - dont 25 lots habitation. (Pas de procédure en cours).
Charges annuelles : 2672.72 euros.
Léna MURAT (EI) Agent Commercial - Numéro RSAC : - .
Les informations sur les risques auxquels ce bien est exposé sont disponibles sur le site Géorisques : www. georisques. gouv. fr
Les informations sur les risques auxquels ce bien est exposé sont disponibles sur le site Géorisques
Descriptif du bien
- Code postal : 69003
- Surface habitable (m²) : 68 m²
- Nombre de chambre(s) : 2
- Nombre de pièces : 3
- Etage : 5
- Nombre de niveaux : 7
- Ascenseur : OUI
- Nb de salle de bains : 1
- Cuisine : SEPAREE
- Mode de chauffage : Gaz
- Type de chauffage : Radiateur
- Format de chauffage : Collectif
- Interphone : OUI
- Balcon : OUI
- Nombre de garage : 1
- Année de construction : 1997
- Copropriété : OUI
- nombre de lots : 51
- Quote Part annuelle des charges : 222 €
- Prix de vente honoraires TTC inclus : 320 000 €
- Taxe foncière annuelle : 1 212 €
Montant estimé des dépenses annuelles d'énergie pour un usage standard est compris entre 530 € et 790 € . Prix moyens des énergies indexés sur les années 2021, 2022 et 2023 (abonnements compris).
La ville de Lyon (69003)
Nous Contacter
Afficher le téléphone 04 77 71 37 69Les informations recueillies sur ce formulaire sont enregistrées dans un fichier informatisé par La Boite Immo agissant comme Sous-traitant du traitement pour la gestion de la clientèle/prospects de l'Agence / du Réseau qui reste Responsable du Traitement de vos Données personnelles.
La base légale du traitement repose sur l’intérêt légitime de l'Agence / du Réseau.
Elles sont conservées jusqu'à demande de suppression et sont destinées à l'Agence / au Réseau.
Conformément à la loi « informatique et libertés », vous pouvez exercer votre droit d'accès aux données vous concernant et les faire rectifier en contactant l'Agence / le Réseau.
Si vous estimez, après avoir contacté l'Agence / le Réseau, que vos droits « Informatique et Libertés » ne sont pas respectés, vous pouvez adresser une réclamation à la CNIL.
Nous vous informons de l’existence de la liste d'opposition au démarchage téléphonique « Bloctel », sur laquelle vous pouvez vous inscrire ici : https://www.bloctel.gouv.fr
Dans le cadre de la protection des Données personnelles, nous vous invitons à ne pas inscrire de Données sensibles dans le champ de saisie libre
Ce site est protégé par reCAPTCHA, les Politiques de Confidentialité et les Conditions d'Utilisation de Google s'appliquent.
mon espace