- Agence immobilière à Roanne et Villeurbanne
- Vente
- Rhone
- Lyon
- T3 Traversant Lyon 8ème Santy la plaine
Référence : 1792C3
Calculette
Partager
T3 Traversant Lyon 8ème Santy la plaine
Description de l'offre
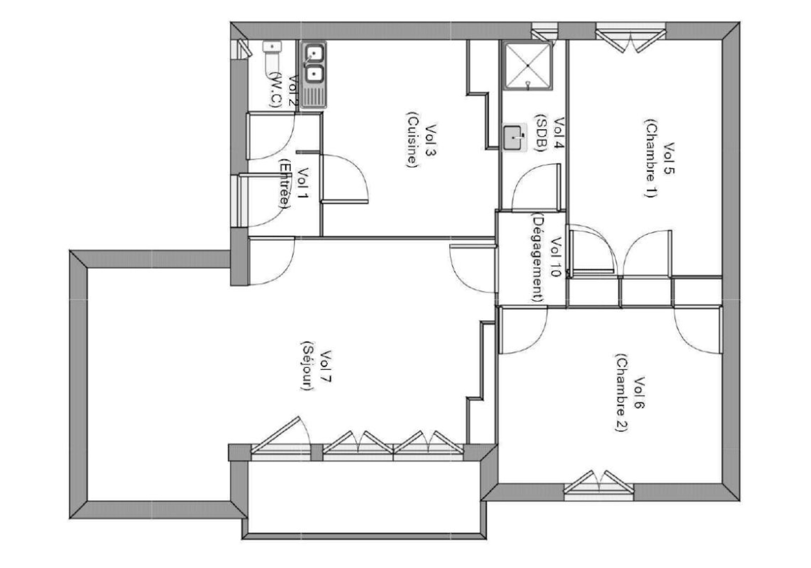
Votre agence GINET Immobilier a le plaisir de vous présenter cet appartement T3 de 66,85m2, idéalement situé au 3ème étage d'une résidence calme et en retrait de la rue.
Nichée dans le secteur de Santy La Plaine, à deux pas de la place Général André et de toutes ses commodités (transports, commerces, écoles), cette adresse offre un cadre de vie agréable et pratique au quotidien.
L'appartement, climatisé, traversant et baigné de lumière, se compose d'un séjour ouvrant sur un balcon, d'une cuisine semi ouverte, de deux chambres, d'une salle d'eau et de toilettes séparées.
Une cave vient compléter ce bien.
La copropriété dispose également d'un stationnement collectif pour plus de confort.
Pour organiser une visite, contactez Antoine Madelrieux O698301684
Copropriété de 264 lots - dont 88 lots habitation.
Charges annuelles : 916 euros.
Les informations sur les risques auxquels ce bien est exposé sont disponibles sur le site Géorisques : www. georisques. gouv. fr
Les informations sur les risques auxquels ce bien est exposé sont disponibles sur le site Géorisques
Descriptif du bien
- Code postal : 69008
- Surface habitable (m²) : 66 m²
- Nombre de chambre(s) : 2
- Nombre de pièces : 4
- Etage : 3
- Nombre de niveaux : 3
- Ascenseur : NON
- Nb de salle d'eau : 1
- Cuisine : SEPAREE
- Mode de chauffage : Gaz
- Type de chauffage : Radiateur
- Format de chauffage : Individuel
- Interphone : OUI
- Balcon : OUI
- Cave : OUI
- Année de construction : 1962
- Copropriété : OUI
- nombre de lots : 264
- Quote Part annuelle des charges : 76 €
- Prix de vente honoraires TTC inclus : 199 000 €
- Taxe foncière annuelle : 973 €
La ville de Lyon (69008)
Nous Contacter
Afficher le téléphone 04 77 71 37 69Les informations recueillies sur ce formulaire sont enregistrées dans un fichier informatisé par La Boite Immo agissant comme Sous-traitant du traitement pour la gestion de la clientèle/prospects de l'Agence / du Réseau qui reste Responsable du Traitement de vos Données personnelles.
La base légale du traitement repose sur l'intérêt légitime de l'Agence / du Réseau.
Elles sont conservées jusqu'à demande de suppression et sont destinées à l'Agence / au Réseau.
Conformément à la loi « informatique et libertés », vous disposez des droits d’accès, de rectification, d’effacement, d’opposition, de limitation et de portabilité de vos données. Vous pouvez retirer votre consentement à tout moment en contactant directement l’Agence / Le Réseau.
Consultez le site https://cnil.fr/fr pour plus d’informations sur vos droits.
Si vous estimez, après avoir contacté l'Agence / le Réseau, que vos droits « Informatique et Libertés » ne sont pas respectés, vous pouvez adresser une réclamation à la CNIL.
Nous vous informons de l’existence de la liste d'opposition au démarchage téléphonique « Bloctel », sur laquelle vous pouvez vous inscrire ici : https://www.bloctel.gouv.fr
Dans le cadre de la protection des Données personnelles, nous vous invitons à ne pas inscrire de Données sensibles dans le champ de saisie libre.
Ce site est protégé par reCAPTCHA, les Politiques de Confidentialité et les Conditions d'Utilisation de Google s'appliquent.
mon espace