- Agence immobilière à Roanne et Villeurbanne
- Vente
- Loire
- Roanne
- Exclusivité ! T2 lumineux proche des bords de Loire
Référence : 12344AG
Calculette
Partager
Exclusivité ! T2 lumineux proche des bords de Loire
Description de l'offre
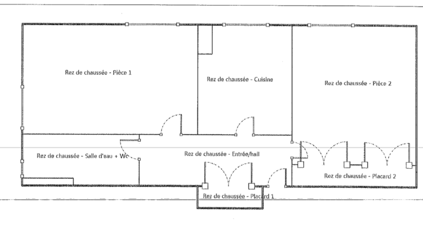
Votre agence Ginet Immobilier vous propose en exclusivité ce charmant T2 de 46 m², situé en rez-de-chaussée surélevé, à deux pas des bords de Loire.
En bon état général, cet appartement se compose d'une entrée desservant une cuisine indépendante aménagée et équipée, une agréable pièce de vie lumineuse, une chambre confortable ainsi qu'une salle d'eau avec WC.
Polyvalent, ce bien conviendra aussi bien à un investisseur qu'à un acquéreur en résidence principale. Il était précédemment loué en meublé 400 euros hors charges, offrant ainsi une base locative intéressante.
Possibilité de conserver le mobilier et les équipements en place, en supplément, pour une mise en location rapide et simplifiée ou une entrée dans les lieux immédiate.
Pour plus de renseignements et visite, contactez Alexandre Geay au O6.80.91.50.61.
Copropriété de 132 lots - dont 62 lots habitation.
Charges annuelles : 2277 euros.
Alexandre GEAY (EI) Agent Commercial - Numéro RSAC : 838058170 - roanne.
Les informations sur les risques auxquels ce bien est exposé sont disponibles sur le site Géorisques : www. georisques. gouv. fr
Les informations sur les risques auxquels ce bien est exposé sont disponibles sur le site Géorisques
Descriptif du bien
- Code postal : 42300
- Surface habitable (m²) : 46 m²
- Nombre de chambre(s) : 1
- Nombre de pièces : 2
- Nombre de niveaux : 4
- Ascenseur : NON
- Nb de salle d'eau : 1
- Cuisine : AMENAGEE
- Mode de chauffage : Gaz
- Type de chauffage : Radiateur
- Format de chauffage : AUTRE
- Interphone : OUI
- Cave : OUI
- Nombre de parking : 1
- Année de construction : 1970
- Quartier : bords de Loire
- Copropriété : OUI
- nombre de lots : 132
- Quote Part annuelle des charges : 2 277 €
- Prix de vente honoraires TTC inclus : 65 000 €
- Taxe foncière annuelle : 836 €
La ville de Roanne (42300)
Nous Contacter
Afficher le téléphone 04 77 71 37 69Les informations recueillies sur ce formulaire sont enregistrées dans un fichier informatisé par La Boite Immo agissant comme Sous-traitant du traitement pour la gestion de la clientèle/prospects de l'Agence / du Réseau qui reste Responsable du Traitement de vos Données personnelles.
La base légale du traitement repose sur l'intérêt légitime de l'Agence / du Réseau.
Elles sont conservées jusqu'à demande de suppression et sont destinées à l'Agence / au Réseau.
Conformément à la loi « informatique et libertés », vous disposez des droits d’accès, de rectification, d’effacement, d’opposition, de limitation et de portabilité de vos données. Vous pouvez retirer votre consentement à tout moment en contactant directement l’Agence / Le Réseau.
Consultez le site https://cnil.fr/fr pour plus d’informations sur vos droits.
Si vous estimez, après avoir contacté l'Agence / le Réseau, que vos droits « Informatique et Libertés » ne sont pas respectés, vous pouvez adresser une réclamation à la CNIL.
Nous vous informons de l’existence de la liste d'opposition au démarchage téléphonique « Bloctel », sur laquelle vous pouvez vous inscrire ici : https://www.bloctel.gouv.fr
Dans le cadre de la protection des Données personnelles, nous vous invitons à ne pas inscrire de Données sensibles dans le champ de saisie libre.
Ce site est protégé par reCAPTCHA, les Politiques de Confidentialité et les Conditions d'Utilisation de Google s'appliquent.
mon espace